金沢市上荒屋A棟
- 所在地
- 金沢市上荒屋
- 価格
- 3,590万円
- 間取り
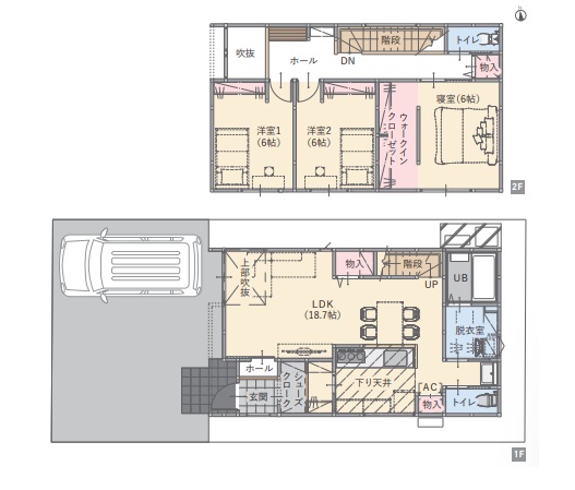
- 3LDK
- 土地面積
- 115.11㎡(34.82坪)
- 建物面積
- 97.70㎡(29.55坪)
- 交通
- 上荒屋 バス停 徒歩4分
2026年7月完成予定、8月以降入居予定
3LDK+シューズクローク、WICあり
オール電化
耐震等級3相当、断熱等級5級
玄関から2WAYでLDKへ入る快適動線
物件詳細情報
- 物件名
- 金沢市上荒屋A棟
- 住所
- 金沢市上荒屋
- 価格
- 3,590万円
- 交通
- 上荒屋 バス停 徒歩4分
- 間取り
- 3LDK
- 構造
- 木造2階建
- 駐車場
- あり
- 土地権利
- 所有権
- 地目
- 宅地
- 土地面積
- 115.11㎡(34.82坪)
- 建物面積
- 97.70㎡(29.55坪)
- 用途地域
- 一中高
- 建べい率
- 60%
- 容積率
- 200%
- 接道状況
- 西側4.88m
- 現状
- 建築中
- 引渡し
- 2026年8月以降
- 小学校区
- 三和
- 中学校区
- 西南部

物件検索
お問い合わせ
076-259-5251

